Pomorie:
Dream homes in Pomorie: Houses complex in Pomorie
Property ID: MK0016






























Price:
215.000 €
Living space:
154,18 sq. m.
Plot size:
178,22 sq. m.
No. of rooms:
3
A NEW NEIGHBORHOOD with 16 luxury detached houses is being built in Pomorie.
Each house is two stories and has the following layout:
• First Floor – spacious living room with kitchen, bathroom with toilet, utility room for central heating, laundry room, garage with heated connection
• Second Floor – 3 bedrooms, 2 bathrooms with toilets, one of which is a master bedroom with its own bathroom and toilet, 2 terraces.
The houses have a total built-up area ranging from 160 to 230 sqm, each with its own yard of 150 to 250 sqm.
Here is House 8 – your new home!
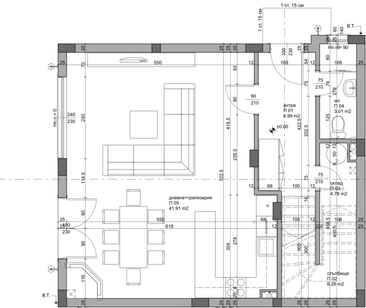
The beautiful property has the following layout:
Floor 1 – 69.92 sqm
• Living room with kitchen and dining area
• Utility room
• Bathroom
• Corridor
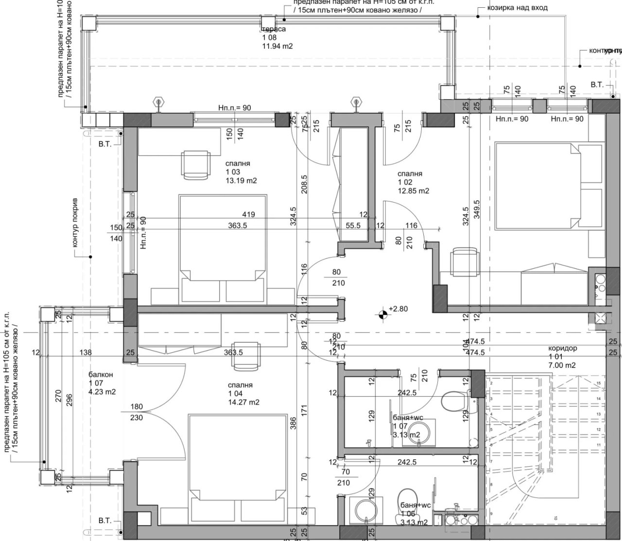
Floor 2 – 84.26 sqm
• Master bedroom with private bathroom
• Bedroom 1
• Bedroom 2
• Bathroom
• Corridor…
The house is currently under construction, in the phase before Act 14. This means that the shell construction is almost complete. The building, including foundations, walls, and roof, has been finished. Currently, Act No. 14 is being issued to certify the completion of this phase. This is a key milestone because subsequent work includes installations, window frames, and cladding. The construction process follows the approved project and technical standards to ensure the stability and quality of the future home. The house is suitable for clients who wish to customize the interior at a later stage.
There are also other houses available for sale; please feel free to contact us for more information!
Type of house: Detached house
Number of floors: 2
Number of bedrooms: 3
Number of bathrooms: 3
Balcony: 1
Terrace: 1
Basement: no
Suitable as holiday home: yes
Surroundings: Quiet area, Residential area
Furnished: no
Views: Distant view
Quality of fittings: Luxury
Year of construction: 2025
Construction phase: House under construction
Condition: First occupier
Upon signing a purchase contract, a placement / termination fee of 5.8% including 19% VAT on the purchase price by the buyer will be charged.
The information provided by us is based on information provided by the seller or the seller. For the correctness and completeness of the information, no responsibility or liability can be accepted. An intermediate sale and mistakes are reserved.
We refer to our terms and conditions. Through further use our services do you explain your knowledge and consent.
You might also like
Single-family house with sea view and garden in Ravda, Bulgaria
House in the village Goritsa
Two-story house in the village of Prosenik, Burgas Region

Nils Ott Group Ltd.
Mr. Nils Ott
Hotel Bisser, Office Nr 58240 Sunny Beach
Phone: +359 88 6498335






























































