Pomorie:
Rajskie domy w Pomorie, kompleks Houses w Pomoriu
numeru objektu: MK0016






























Cena:
215.000 €
Powierzchnia mieszkalna okolo:
154,18 m2
Dzialka okolo:
178,22 m2
Liczba izb:
3
Nowa dzielnica z 16 luksusowymi domami jednorodzinnymi powstaje w Pomorie.
Każdy dom jest dwupiętrowy i ma następujący układ:
• Pierwsze piętro – duży salon z kuchnią, łazienka z WC, pomieszczenie gospodarcze na centralne ogrzewanie, pralnia, garaż z podłączeniem ciepłej wody
• Drugie piętro – 3 sypialnie, 2 łazienki z WC, z czego jedna to główna sypialnia z własną łazienką i WC, 2 tarasy.
Domy mają łączną powierzchnię budowlaną od 160 do 230 m². Każdy posiada własny podwórek o powierzchni od 150 do 250 m².
Tu znajduje się dom nr 8 – Twoje nowe miejsce do zamieszkania!
Piękna posesja ma następujący rozkład:
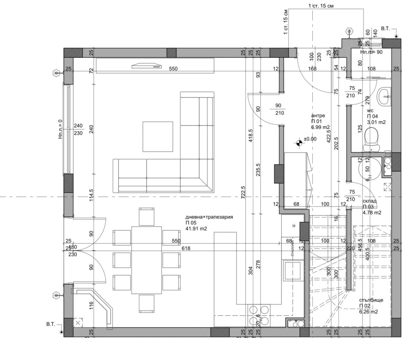
Piętro 1 – 69,92 m²
• Pokój dzienny z kuchnią i jadalnią
• Pomieszczenie serwisowe
• Łazienka
• Korytarz
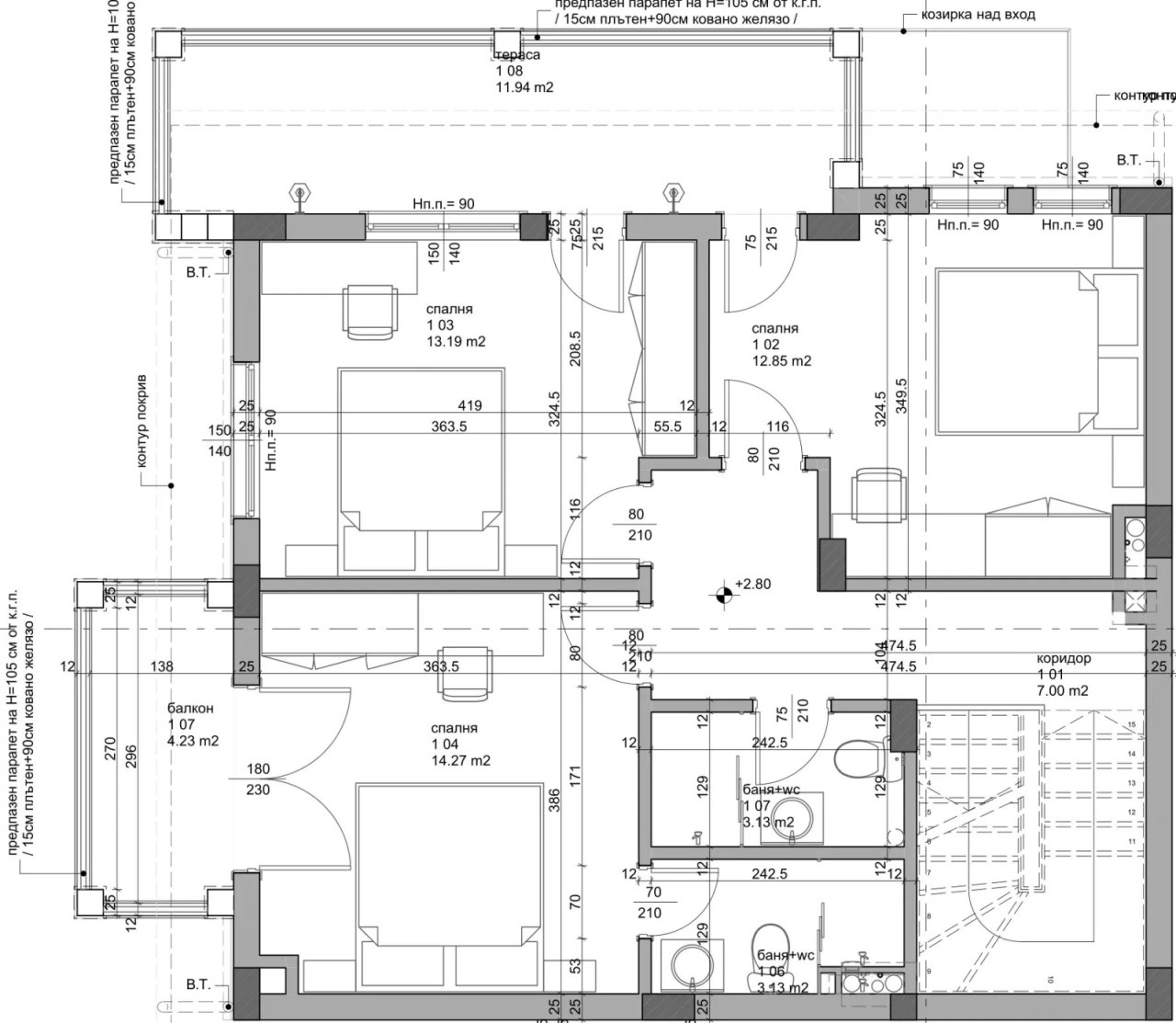
Piętro 2 – 84,26 m²
• Główna sypialnia z własną łazienką
• Sypialnia 1
• Sypialnia 2
• Łazienka
• Korytarz…
Dom jest obecnie w budowie, na etapie przed zakończeniem Aktu nr 14. Oznacza to, że stan surowy jest prawie ukończony. Budowa, w tym fundamenty, ściany i dach, zostały zakończone. Obecnie wydawany jest Akt nr 14, potwierdzający zakończenie tego etapu. To kluczowy moment, ponieważ po nim nastąpią prace wykończeniowe takie jak instalacje, ramy okienne i okładziny. Proces budowy przebiega zgodnie z zatwierdzonym projektem i normami technicznymi, aby zapewnić stabilność i jakość przyszłego domu. Dom nadaje się dla klientów planujących późniejszą aranżację wnętrza.
Posiadamy również inne domy na sprzedaż — zapraszamy do kontaktu, chętnie udzielimy wszelkich informacji!
typ domu: domek jednorodzinny
ilosc pieter: 2
ilosc sypialni: 3
ilosc lazienek: 3
Balkon: 1
Taras: 1
Piwnica: nie
Dostosowany jako dom wakacyjny: tak
okolica: spokojna okolica, zespól mieszkalny
Umeblowanie: nie
Widok: Rozlegly widok
Jakosc wyposazenia: Luksus
Rok budowy: 2025
Faza budowy: Dom w budowie
Stan: pierwsze wprowadzenie
Może Ci się też spodobać

Nils Ott Group Ltd.
pan Nils Ott
Hotel Bisser, Office Nr 58240 Sunny Beach
telefon: +359 88 6498335













































































































































