Pomorie:
Incredible houses in Pomorie Houses complex in Pomorie
Ref.n°.: MK0016






























Prezzo:
215.000 €
Superficie ca.:
154,18 mq.
Terreno ca.:
178,22 mq.
Vani :
3
НОВО МЯСТО с 16 луксозни еднофамилни къщи се изгражда в Поморие.
Всяка къща е двуетажна и има следната разпределение:
• Първи етаж - голям дневен тракт с кухня, баня с тоалетна, битовка за централно отопление, перално помещение, гараж с топъл вход
• Втори етаж - 3 спални, 2 бани с тоалетна, като едната е главна спалня със собствена баня и тоалетна, 2 тераси.
Къщите имат обща застроена площ от 160 до 230 кв.м. Всяка с собствен двор от 150 до 250 кв.м.
Тук се намира къща 8 - вашият нов дом!
Красивата имота има следното разпределение:
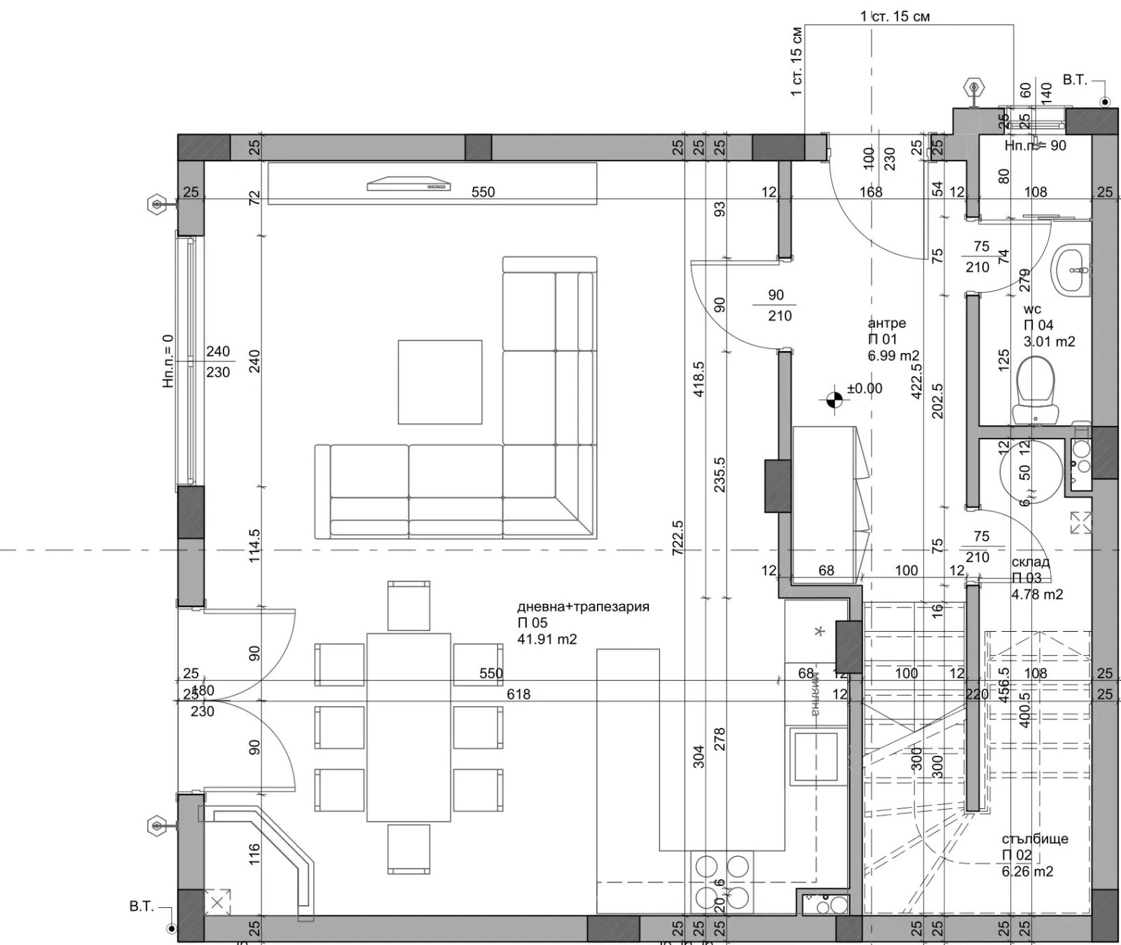
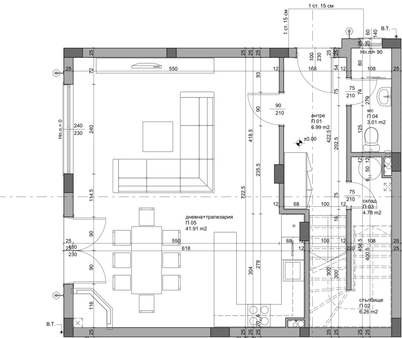
Етаж 1 - 69,92 м²
• Дневен тракт с кухня и трапезария
• Сервизни помещения
• Баня
• Коридор
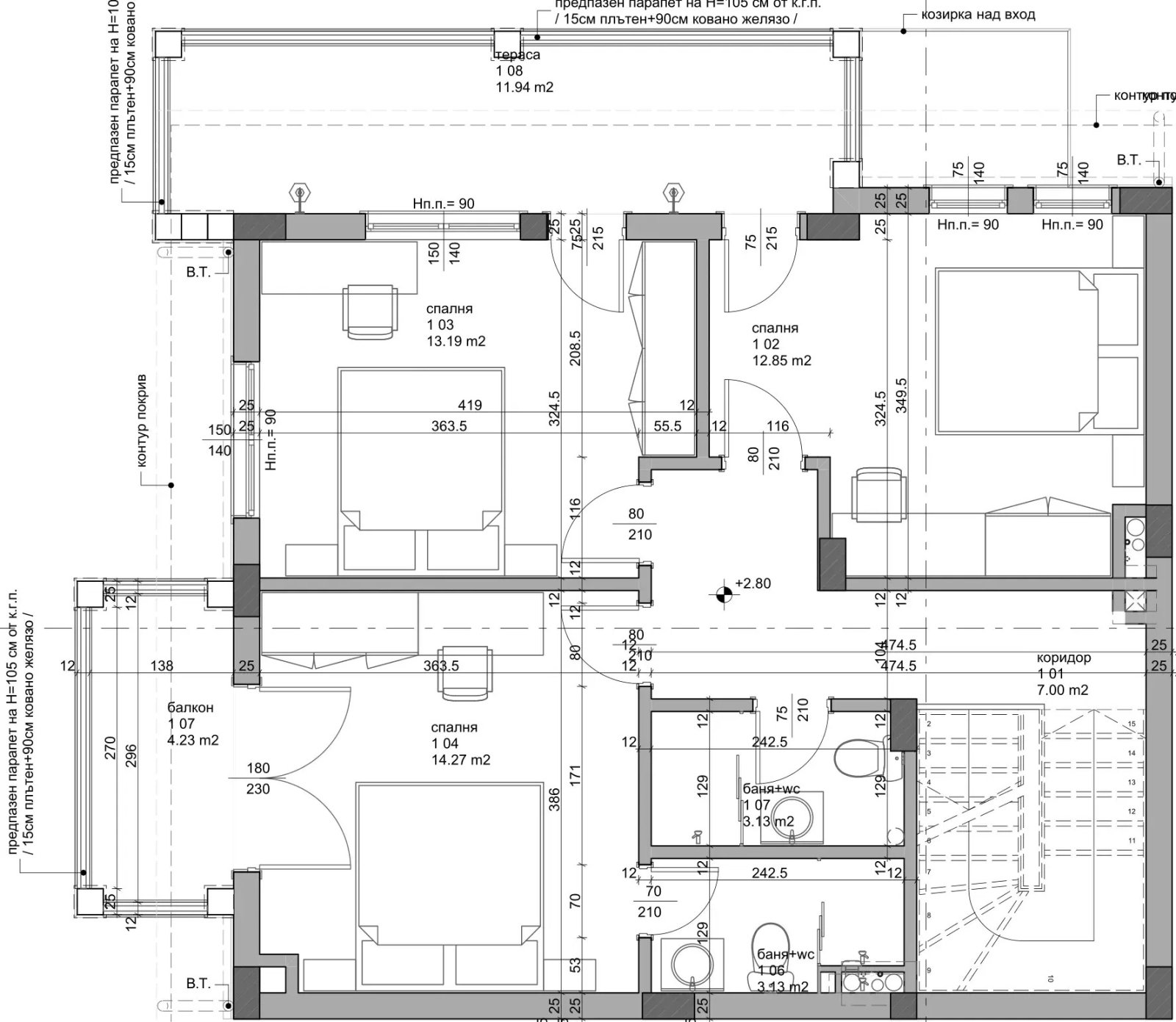
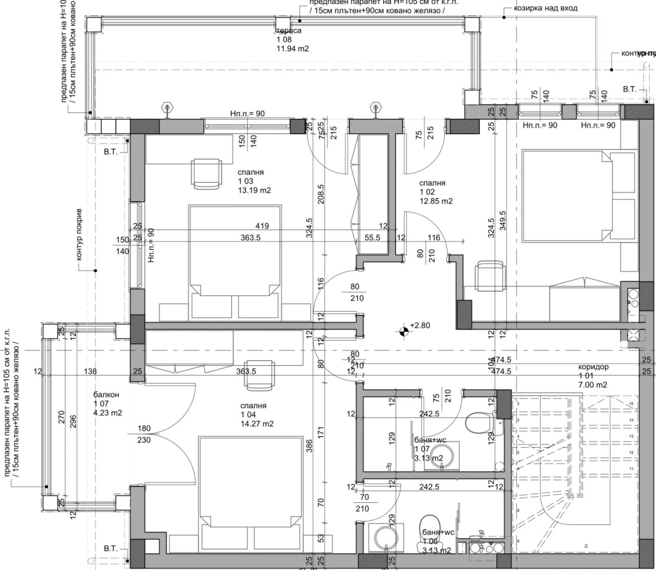
Етаж 2 - 84,26 м²
• Главна спалня със собствена баня
• Спалня 1
• Спалня 2
• Баня
• Коридор…
Къщата е в момента в строеж, в фаза преди Акт 14. Това означава, че грубият строеж е почти завършен. Строителството, включително основите, стени и покрив, са изпълнени. В момента се издава Акт №14, който удостоверява завършването на тази фаза. Това е ключов момент, тъй като след това ще последват довършителни работи като инсталации, рамки за прозорци и обшивки. Строителният процес се извършва според одобрения проект и техническите стандарти, за да се гарантира стабилността и качеството на бъдещата къща. Къщата е подходяща за клиенти, които искат да персонализират интериора си на по-късен етап.
Предлагат се и други къщи за продажба – свържете се с нас и ще ви предоставим цялата необходима информация!
Tipo di casa: Casa indipendente
Piani: 2
Numero delle camere da letto: 3
Numero dei bagni: 3
Balcone: 1
Terrazza: 1
Cantina/taverna: No
Adatta come casa per le vacanze: Si
Dintorni: zona tranquilla, Complesso residenziale
Arredamento: No
Panorama: Vista
Qualità dell´arredamento: Lusso
Anno di costruzione: 2025
Fase di costruzione: Casa in costruzione
Stato: Nuovo
Potrebbe anche piacerti

Nils Ott Group Ltd.
Signor Nils Ott
Hotel Bisser, Office Nr 58240 Sunny Beach
Telefono: +359 88 6498335





































































































