Kosharitsa:
Building plot with sea view in Kosharitsa, Bulgaria.
Property ID: RSMA145
























Plot size:
2.300 sq. m.
Price:
140.700 €
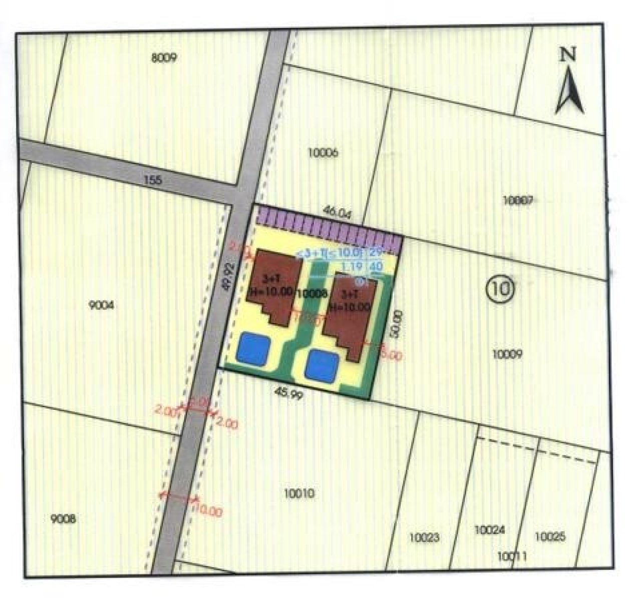
We offer you a building plot with an unobstructed sea view in Kosharitsa, Bulgaria. This 2,300 m² plot is regulated and has a building permit coefficient for the construction of up to 33 apartments (each 50 m²) or 6 houses (each 115 m²) or 2 large villas with gardens and 2 swimming pools and parking, or a hotel. The plot is situated in peaceful nature, overlooking Sunny Beach and Nessebar, offering a fantastic, unobstructed sea view due to its orientation and the forest behind it. Electricity and water are nearby, as there is existing development with good road access. The plot is close to the developments of Rio Apartments and Nessebar View Villas. Kosharitsa is located at the foot of the Balkan Mountains and is only a few minutes away from Sunny Beach and Nessebar. Kosharitsa is the perfect place for rural tourism and hunting, while being just minutes from the beach.
2300 m², Regulated
Panoramic view over the bay
Existing building permit, 1.20 building coefficient x 2,300 = 2,760 m²
Excellent investment opportunity
Type of usage: Living
Development: Unexplored
May be developed from: Built according to construction plan
Recommended use: Villa
Surroundings: Bus, Shopping facilities, Quiet area
Views: Sea View
Subject to commission: no
No brokerage or commission fee will be due from the buyer upon the conclusion of a purchase agreement.
The information provided by us is based on information provided by the seller or the seller. For the correctness and completeness of the information, no responsibility or liability can be accepted. An intermediate sale and mistakes are reserved.
We refer to our terms and conditions. Through further use our services do you explain your knowledge and consent.
You might also like
Large plot with a house for demolition in Sredets, Bulgaria
Developing country in Sveti Vlas, Bulgaria

Nils Ott Group Ltd.
Mr. Nils Ott
Hotel Bisser, Office Nr 58240 Sunny Beach
Phone: +359 88 6498335
























