San Pedro del Pinatar, Murcia:
Attraktiver Bungalow mit vier Schlafzimmern, Dachterrasse mit Solarium und Swimmingpool, 4 km vom Meer entfernt, San Pedro del Pinatar, Murcia
Objekt-Nr.: IP24133


















Preis:
299.900 €
Wohnfläche ca.:
96 m²
Zimmeranzahl:
4
Wir bieten Ihnen einen hellen Bungalow im ersten Stock eines eleganten Reihenhauses zum Kauf an. Die Immobilie vereint moderne Architektur mit praktischer Raumaufteilung und langfristigem Investitionspotenzial. Das Projekt, dessen Fertigstellung für September 2027 geplant ist, bietet die ideale Kombination aus Privatsphäre, Komfort und mediterranem Lebensstil, die Sie begeistern wird.
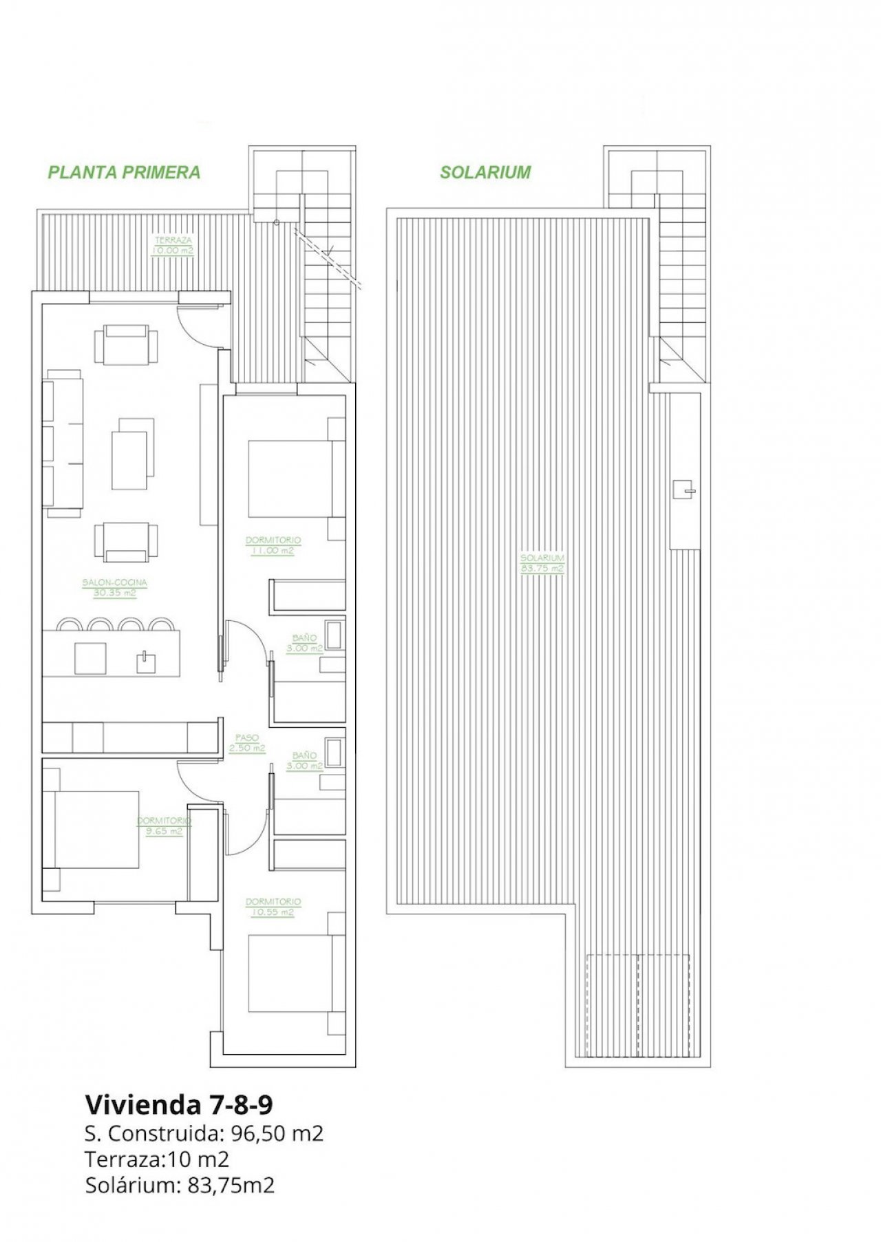
Die Wohnung befindet sich im Obergeschoss und verfügt über drei Schlafzimmer und zwei Badezimmer. Sie bietet viel Platz für Familie und Gäste. Die Gesamtfläche von 96,50 m² ist luftig und harmonisch gestaltet. Herzstück ist das 30,35 m² große Wohnzimmer mit Küche, das nahtlos in die überdachte Terrasse übergeht und einen angenehmen Ort zum Leben schafft.…
Das absolute Highlight dieser Immobilie ist die private Dachterrasse mit 83,75 m², die das Wohnen auf ein ganz neues Niveau hebt. Sie bietet ausreichend Platz zum Entspannen, Sonnenbaden und für gesellige Abende mit Freunden und erweitert den Wohnraum um einen weiteren vollwertigen Bereich unter freiem Himmel.
Es verfügt über eine eigene Garage und einen Parkplatz, was für Komfort und Sicherheit sorgt. Die gesamte Anlage wirkt ruhig und harmonisch und bietet ein angenehmes Umfeld für Alltag und Freizeit.
San Pedro del Pinatar ist ein beliebter Ort mit umfassender Infrastruktur und freundlicher Atmosphäre. Das Meer ist ca. 4 km entfernt, Sportanlagen ca. 1,4 km, ein Golfplatz 8,5 km und Grünflächen ca. 4 km. In der Nähe befinden sich ein Einkaufszentrum (4,2 km), eine Apotheke (0,9 km) und ein Krankenhaus (8,5 km). Dank des 1,1 km entfernten Bahnhofs und des ca. 41 km entfernten Flughafens ist eine hervorragende Anbindung gewährleistet.
Diese Immobilie ist eine attraktive Lösung für alle, die eine Investition mit Wachstumspotenzial suchen und einen Ort zum Entspannen und für neue Erinnerungen in angenehmer Meeresnähe wünschen.
Alle Angaben in dieser Anzeige dienen ausschließlich Informationszwecken. Bevor Sie Entscheidungen treffen oder auf Grundlage dieser Informationen handeln, überprüfen Sie bitte alle Daten mit unserer Immobilienagentur.
Haustyp: Villa
Anzahl Schlafzimmer: 3
Balkon: 1
Terrasse: 1
Pool: ja
Fahrstuhl: ja
Anzahl der Parkflächen: 1 x Außenstellplatz
Bei Abschluss eines Kaufvertrages wird keine Vermittlungs-/ Nachweisprovision auf den Kaufpreis vom Käufer fällig.
Die von uns gemachten Informationen beruhen auf Angaben des Verkäufers bzw. der Verkäuferin. Für die Richtigkeit und Vollständigkeit der Angaben kann keine Gewähr bzw. Haftung übernommen werden. Ein Zwischenverkauf und Irrtümer sind vorbehalten.
Wir weisen auf unsere Allgemeinen Geschäftsbedingungen hin. Durch weitere Inanspruchnahme unserer Leistungen erklären Sie die Kenntnis und Ihr Einverständnis.
Das könnte Ihnen auch gefallen

Nils Ott Group Ltd.
Herr Nils Ott
Hotel Bisser, Office Nr 58240 Sunny Beach
Telefon: +359 88 6498335
San Pedro del Pinatar, Murcia






































































