Kraimorie:
Exklusives dreistöckiges Haus in erster Meereslinie im Stadtviertel Kraimorie, Burgas
Objekt-Nr.: MK0028


























Preis:
315.000 €
Wohnfläche ca.:
218,10 m²
Zimmeranzahl:
4
Für Meerliebhaber und Kenner atemberaubender Sonnenuntergänge!
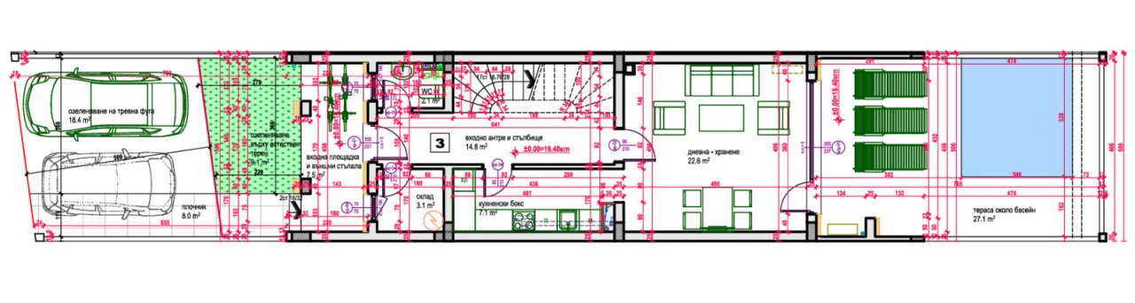
Die Zufahrt zu Ihrem neuen Haus erfolgt direkt von der Straße aus. Es gibt einen privaten Hof, der durch Zäune begrenzt ist. Der Zugang zum Wohngebäude ist für zwei Autos vorgesehen. Es gibt Klettervegetation auf Pergolen über den Parkplätzen und an den Zäunen, die die Höfe trennen.
Die Fläche des dreistöckigen Gebäudes beträgt 218,1 m².
Hinter dem Gebäude befinden sich zwei Parkplätze, eine begrünte Eingangsgasse und eine Einfahrtsplattform mit Fahrradstellplätzen.
Im ersten Stock befindet sich eine Eingangshalle mit einer Treppe in den zweiten Stock und einem Abstellraum darunter, ein Abstellraum, ein eigenes Bad, eine Küchenzeile mit Esszimmer und ein Wohnzimmer.
Die Veranda mit dem Pool, der freie Bereich für die Sonnenliegen und der Grillplatz, die als Ruhebereich zur Verfügung stehen, befinden sich im Hof mit Blick auf das Meer.…
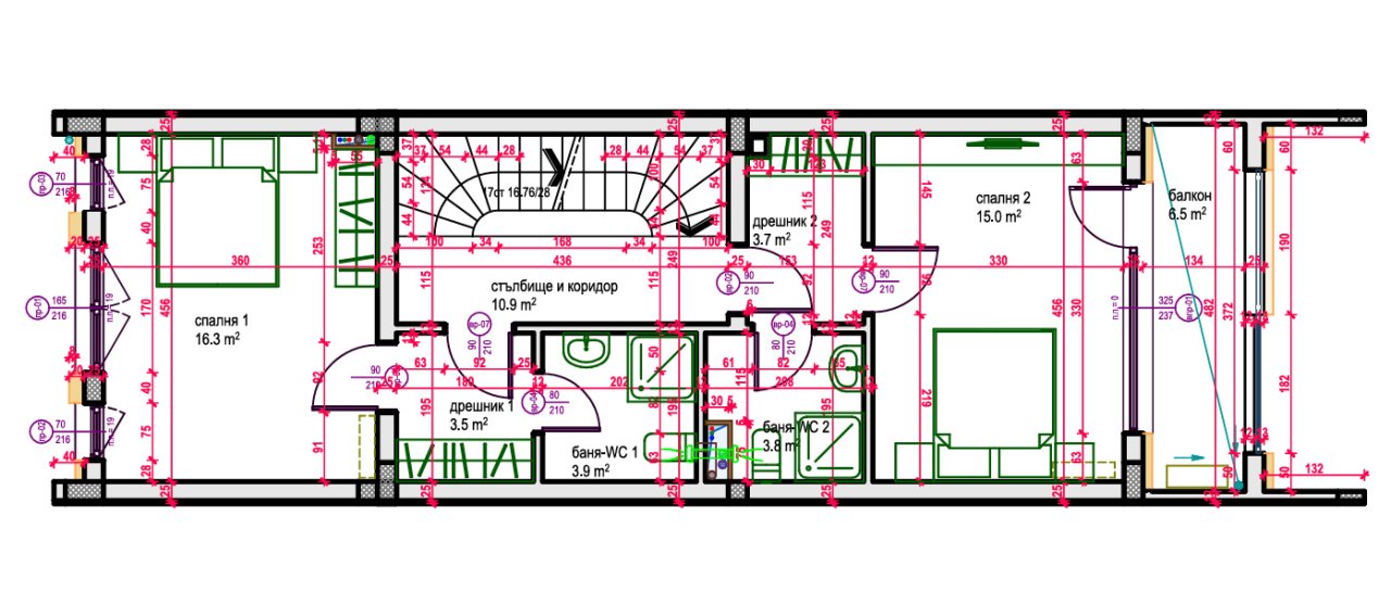
Im zweiten Stock gibt es eine Treppe und einen Flur, zwei Schlafzimmer mit jeweils eigenem Bad und einem Kleiderschrank sowie einen Balkon. Eines der Schlafzimmer hat einen Panoramablick auf das Meer.
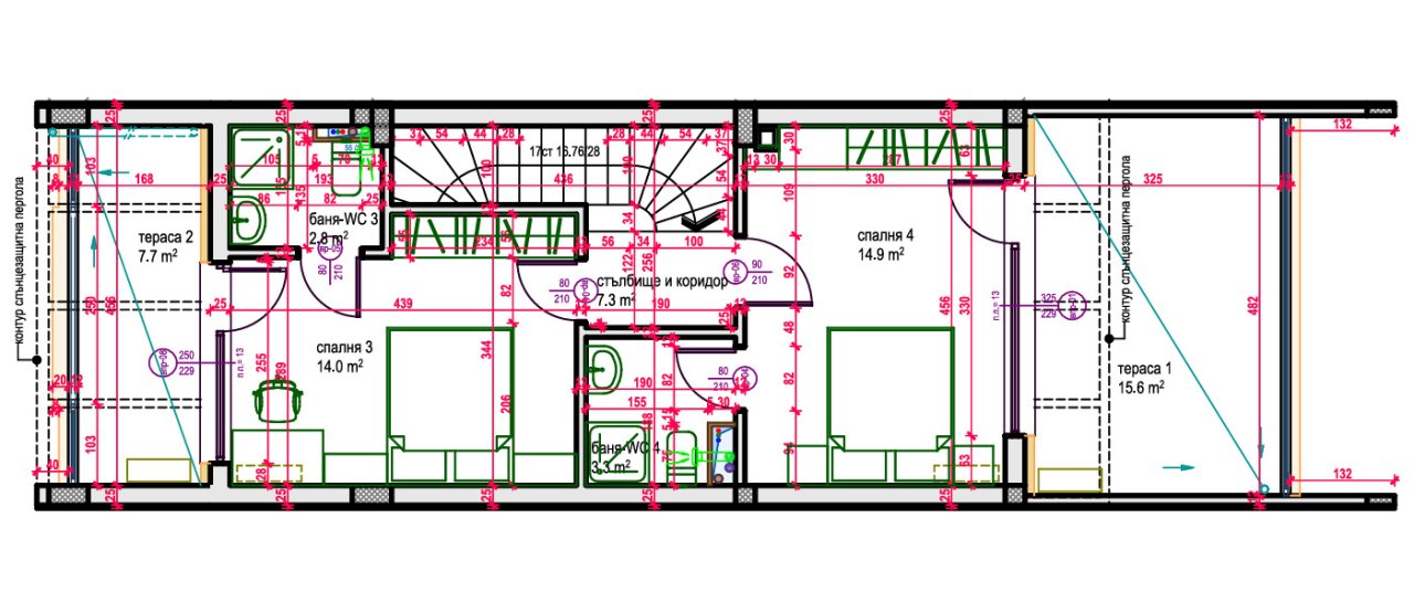
Im dritten Stock befindet sich ein Flur mit zwei Schlafzimmern mit eigenem Bad und Terrassen, von denen die Eine eine große Panoramaterrasse mit Meerblick ist.
Ihre neue Immobilie im Überblick:
- Wohnfläche von 218 qm,
- 4 Schlafzimmer,
- 4 Bäder mit WC,
- 3 Terrassen,
- Ankleidezimmer,
- Küche mit Esszimmer und
- Wohnzimmer,
- Außenpool,
- 2 Parkplätze,
- Einzigartige Sonnenuntergänge.
Das Haus wird schlüsselfertig mit Akt 16 angeboten.
Haustyp: Einfamilienhaus
Etagenanzahl: 3
Provisionspflichtig: nein
Anzahl Schlafzimmer: 4
Anzahl Badezimmer: 4
Balkon: 3
Terrasse: 1
Gäste-WC: ja
Keller: nein
Als Ferienhaus geeignet: ja
Umgebung: Apotheke, Bus, Einkaufsmöglichkeit, Grundschule, Kindergarten, ruhige Gegend, Pool
Anzahl der Parkflächen: 2 x Carport
Möbliert: nein
Ausblick: Meerblick
Qualität der Ausstattung: Luxus
Baujahr: 2025
Bauphase: Haus im Bau
Bei Abschluss eines Kaufvertrages wird keine Vermittlungs-/ Nachweisprovision auf den Kaufpreis vom Käufer fällig.
Die von uns gemachten Informationen beruhen auf Angaben des Verkäufers bzw. der Verkäuferin. Für die Richtigkeit und Vollständigkeit der Angaben kann keine Gewähr bzw. Haftung übernommen werden. Ein Zwischenverkauf und Irrtümer sind vorbehalten.
Wir weisen auf unsere Allgemeinen Geschäftsbedingungen hin. Durch weitere Inanspruchnahme unserer Leistungen erklären Sie die Kenntnis und Ihr Einverständnis.
Das könnte Ihnen auch gefallen

Nils Ott Group Ltd.
Herr Nils Ott
Hotel Bisser, Office Nr 58240 Sunny Beach
Telefon: +359 88 6498335

















































































































































