Limassol :
Луксозен четиристаен апартамент → панорамна гледка към града → Лимасол
Обект №: IP20679




























Цена:
980.000 €
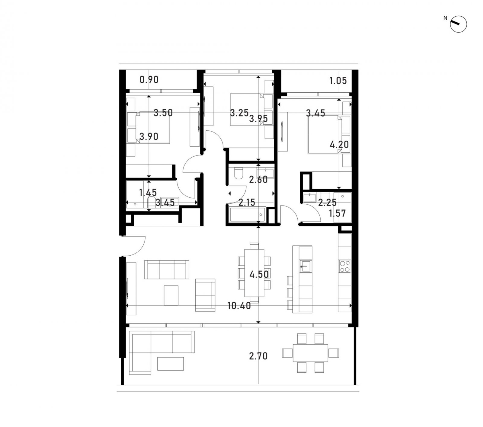
Жилищна площ ок.:
119 м²
Всеки луксозен апартамент се гордее със зашеметяваща гледка към града. Внимателно проектиран с интелигентно управление на пространството, което осигурява чист комфорт и стил. Жителите ще се насладят на богатството от просторни жилищни пространства с прозорци от пода до тавана, които позволяват на естествената светлина да залива пространството, придавайки му усещане за свобода. Тези домове са проектирани с използване на най-добрите висококачествени материали и високи стандарти на довършителни работи, където премиум естетиката е съчетана с подобрения комфорт и функционалност от висок клас. Всеки уникален пентхаус се гордее с непринуден лукс, подсилен от безкомпромисни панорамни гледки към града, които със сигурност ще вдъхновят тялото, ума и душата ви. Добре дошли в една сбъдната мечта.
Тип апартамент: Жилище на етаж
Балкон: 1
Тераса: 1
Асансьор: да
Брой паркоместа: 1 x Външно паркомясто
Може също да ви хареса

Nils Ott Group Ltd.
Г-н Nils Ott
Hotel Bisser, Office Nr 58240 Sunny Beach
Телефон: +359 88 6498335
Limassol

























































