Paphos:
Луксозен четиристаен апартамент → точно до морето, басейни и уелнес → Пафос
Обект №: IP20142




























































Цена:
1.040.000 €
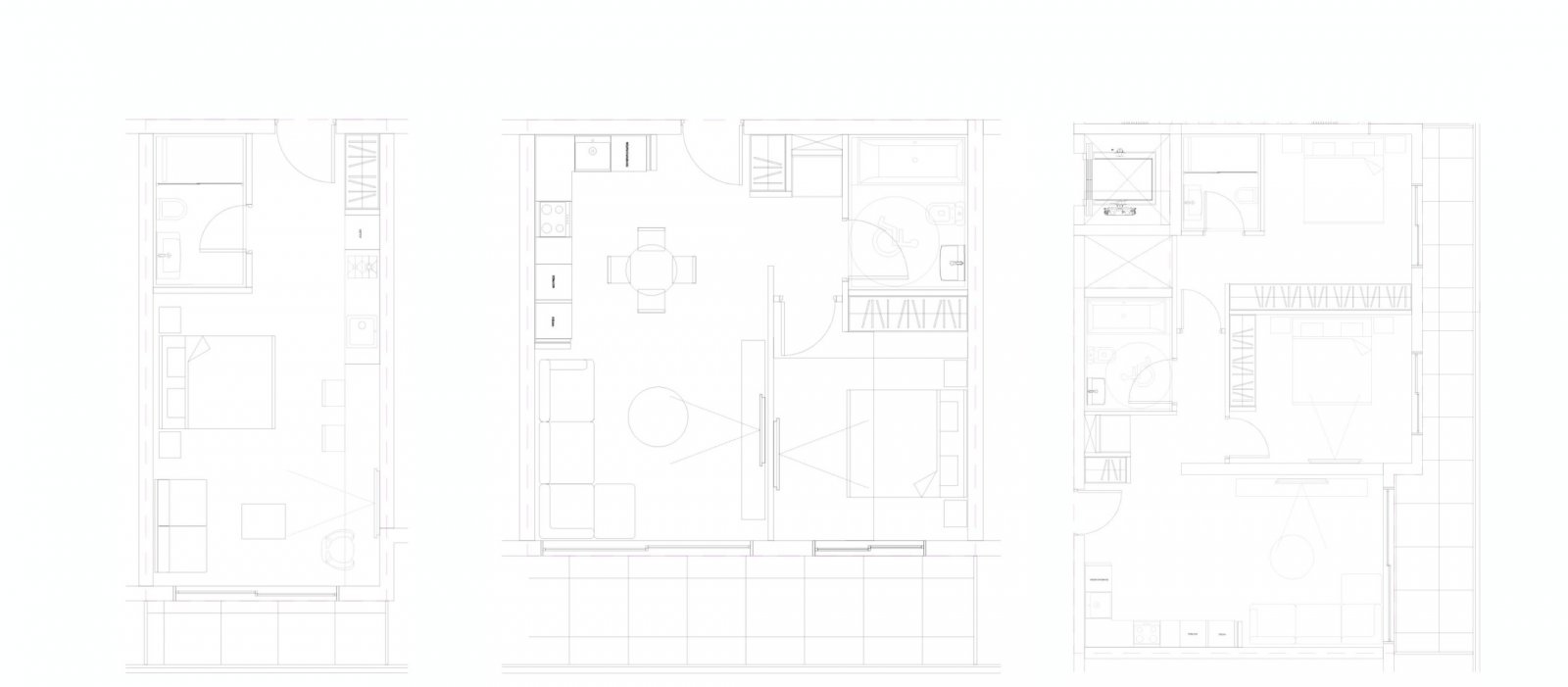
Жилищна площ ок.:
121 м²
:eden bay предлага луксозен живот на морето, вдъхновен от зашеметяващия средиземноморски чар и живописното крайбрежие на Като Пафос. Този жилищен комплекс се състои от пет блока с осемдесет и осем луксозни апартамента, вариращи от компактни студиа до просторни апартаменти с една до четири спални и ексклузивни мезонети със самостоятелни покриви и басейни. Всеки апартамент е проектиран с най-високи стандарти за качество и внимание към детайла, създавайки наистина луксозно изживяване при живеене. Частните луксозни удобства, споделени между живущите, включват сауни, фитнес зали и фитнес зали, плувни басейни, централно проектирани градини и общи части, като комфортът и безопасността на живущите са приоритет, което го прави идеален избор както за начин на живот, така и за инвестиционни цели.
Тип апартамент: Жилище на етаж
Балкон: 1
Тераса: 1
Асансьор: да
Брой паркоместа: 1 x Външно паркомясто
Може също да ви хареса

Nils Ott Group Ltd.
Г-н Nils Ott
Hotel Bisser, Office Nr 58240 Sunny Beach
Телефон: +359 88 6498335
Paphos








































