Sveti Vlas:
Двустаен апартамент с изглед към морето, Русалка, Свети Влас, България
Обект №: RSMA1104




































Цена:
131.800 €
Жилищна площ ок.:
119,30 м²
Брой стаи:
2
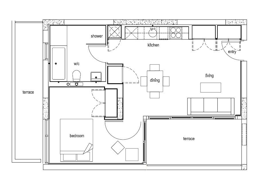
Представяме ви отличен и изключително просторен двустаен апартамент с гледка към морето, разположен в популярния квартал Русалка в Свети Влас. Имотието се намира на втория етаж от жилищна сграда без такса за поддръжка – рядка и особено атрактивна възможност както за собствено ползване, така и за инвеститори.
Апартаментът е само на 700 метра от плажа и ексклузивната яхтена марина Диневи. Живописният курорт Слънчев бряг е на едва 5 минути с кола. Локацията съчетава спокойствие, близост до морето и отлична инфраструктура.
С обща площ от 119,30 м² апартаментът впечатлява с просторна разпределение и множество възможности за използване. Предава се частично обзаведен; банята и кухненският кът са напълно оборудвани.
Особена атракция са трите балкона, които придават уникално усещане за жилище. Единият балкон предлага пълен, свободен изглед към морето до нос Несебър, а останалите два – частичен морски изглед – идеални за релаксиращи часове на открито.…
Апартаментът разполага с теракотени подове, отделни електромерци и акт 16, което удостоверява пълната експлоатация на сградата.
Оборудване & особености
- Голям двустаен апартамент с 119,30 м²
- Втори етаж
- Три балкона, единият с панорамен изглед към морето
- Напълно обзаведена баня
- Обзаведен кухненски кът
- Теракотени подове
- Частично обзаведен
- Отделни електромери
- Акт 16 – разрешена и въведена в експлоатация сграда
- Наличие на паркоместа
- Без такса за поддръжка
- Много тихо и привлекателно местоположение, само на 700 м от плажа и марината
- На 5 минути с кола до Слънчев бряг
Този имот е отлично решение както за постоянно живеене, така и за ваканционно ползване или като инвестиция в един от най-популярните региони по българското Черноморие.
Тип апартамент: Апартамент
Етаж: 2
Брой етажи: 4
С комисионна: не
Полезна площ ок.: 119,30 м²
Кухня: Вградена кухня
Баня: Душ
брой спални: 1
брой бани: 1
Балкон: 2
Маза: не
Климатик: да
Подходящо за ваканционно жилище: да
Околност: Аптека, Автобус, Възможност за пазаруване, Пристанище, Спокоен район, Близо до плажа
Обзаведено: не
Гледка: Изглед към морето
Състояние: Модернизиран
Може също да ви хареса
Drei Zimmer Wohnung im Midia Grand Resort

Nils Ott Group Ltd.
Г-жа Anja Dehn
Hotel Bisser, Office Nr. 58240 Sunny Beach
Телефон: +49 151 61042147
Мобилен: +359 877 151485





























































































