Kraimorie:
Ексклузивна триетажна къща на първа морска линия в квартал Крайморие, Бургас
Обект №: MK0028


























Цена:
315.000 €
Жилищна площ ок.:
218,10 м²
Брой стаи:
4
За любителите на морето и ценителите на зашеметяващи залези!
Достъпът до новия ви дом се осъществява директно от улицата. Има частен двор, ограничен с огради. Входът към жилищната сграда е предназначен за две коли. Има катереща се растителност върху перголи над паркингите и по оградите, които отделят дворовете.
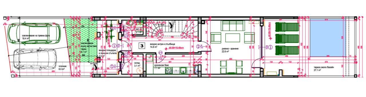
Площта на тризвездната сграда е 218,1 кв.м.
Зад сградата са разположени два паркоместа, озеленена входна алея и рампа за влизане с места за велосипеди.
В първия етаж има входно антре с стълбище към втория етаж и складово помещение под него, самостоятелна баня, кухненски кът с трапезария и хол.
Верендата с басейна, свободната зона за шезлонги и барбекюто, които служат като зона за почивка, са разположени в двора с изглед към морето.
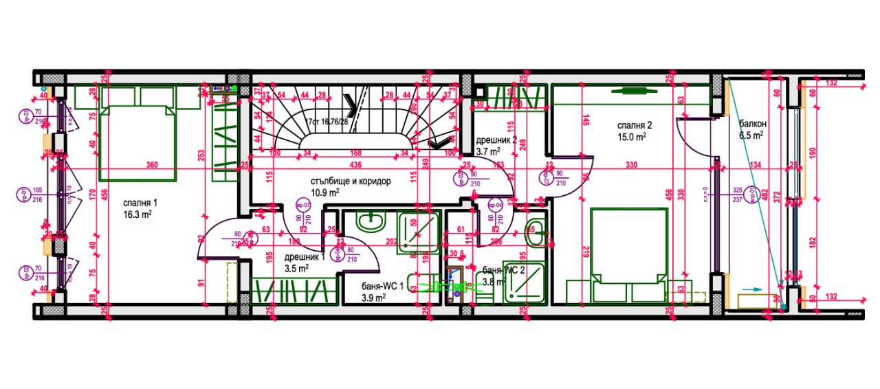
На втория етаж има стълбище и коридор, две спални със собствена баня и гардеробна, както и тераса. Едната от спалните има панорамен изглед към морето.…
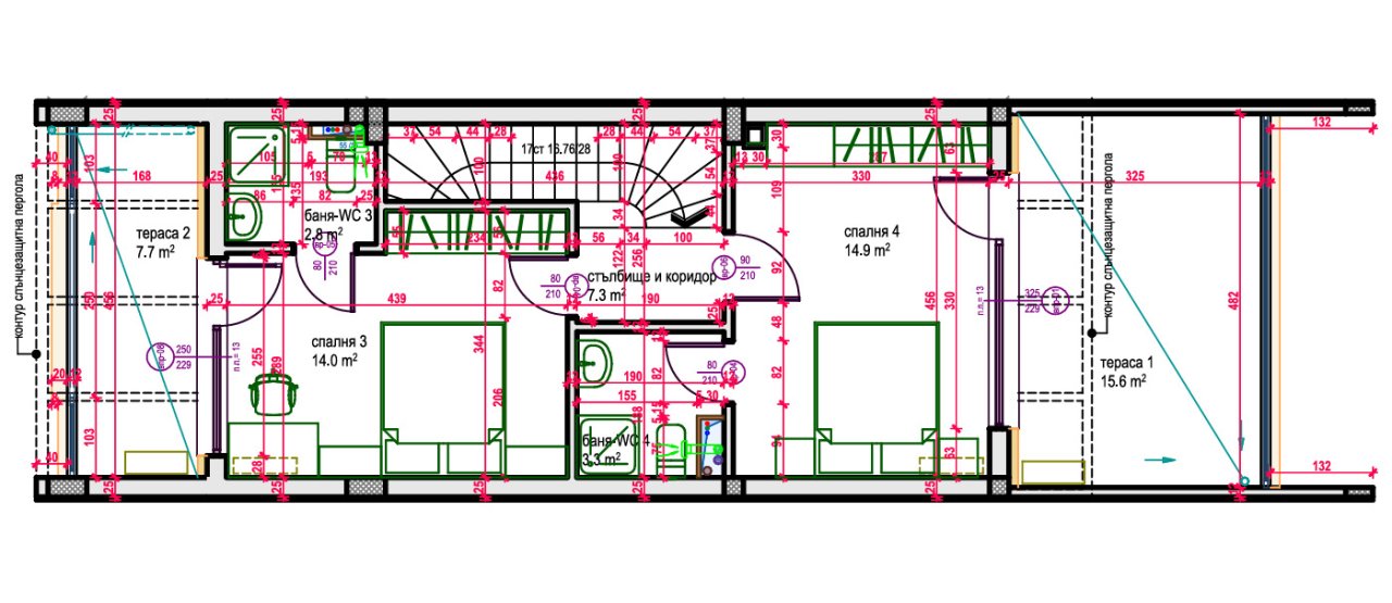
На третия етаж се намира коридор с две спални със собствена баня и тераси, като едната от тях представлява голяма панорамна тераса с гледка към морето.
Вашият нов имот на преглед:
- Жилищна площ от 218 кв.м,
- 4 спални,
- 4 бани с тоалетна,
- 3 тераси,
- Дрешник,
- Кухня с трапезария и
- Хол,
- Външен басейн,
- 2 паркоместа,
- Уникални залези.
Къщата се предлага ключова готова с акт 16.
Тип къща: Еднофамилна къща
Брой етажи: 3
С комисионна: не
брой спални: 4
брой бани: 4
Балкон: 3
Тераса: 1
Тоалетна за гости: да
Маза: не
Подходящо за ваканционна къща: да
Околност: Аптека, Автобус, Възможност за пазаруване, Основно училище, Детска градина, Спокоен район, Басейн
Брой паркоместа: 2 x Навес за кола
Обзаведено: не
Гледка: Изглед към морето
Качество на обзавеждането: лукс
Година на строеж: 2025
Строителна фаза: Къща в строеж
При сключване на договор за покупко-продажба не се начислява комисиона от покупната цена от страна на купувача.
Предоставената от нас информация се основава на данни, предоставени от продавача. Не можем да гарантираме точността и пълнотата на тези данни. Възможни са грешки и предварителна продажба.
Обръщаме внимание на нашите Общи условия. С използването на нашите услуги вие потвърждавате, че сте запознати с тях и се съгласявате.
Може също да ви хареса

Nils Ott Group Ltd.
Г-н Nils Ott
Hotel Bisser, Office Nr 58240 Sunny Beach
Телефон: +359 88 6498335








































































































