Pomorie:
Великолепни къщи в Поморие Комплекс Houses в Поморие
Обект №: MK0016






























Цена:
215.000 €
Жилищна площ ок.:
154,18 м²
Парцел ок.:
178,22 м²
Брой стаи:
3
Нов квартал с 16 луксозни еднофамилни къщи се изгражда в Поморие.
Всяка къща е двуетажна и има следното разпределение:
• Първи етаж - голям хол с кухня, баня с тоалетна, сушилня за централно отопление, перално помещение, гараж с топъл връзка
• Втори етаж - 3 спални, 2 бани с тоалетна, от които едната е главната спалня с собствена баня и тоалетна, 2 тераси.
Къщите имат обща застроена площ от 160 до 230 кв.м. Всяка с двор от 150 до 250 кв.м.
Тук се намира къща №8 - вашият нов дом!
Красивият имот има следното разпределение:
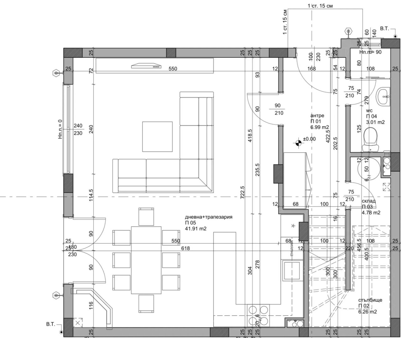
Етаж 1 - 69,92 кв.м
• Хол с кухня и трапезария
• Сервизно помещение
• Баня
• Коридор
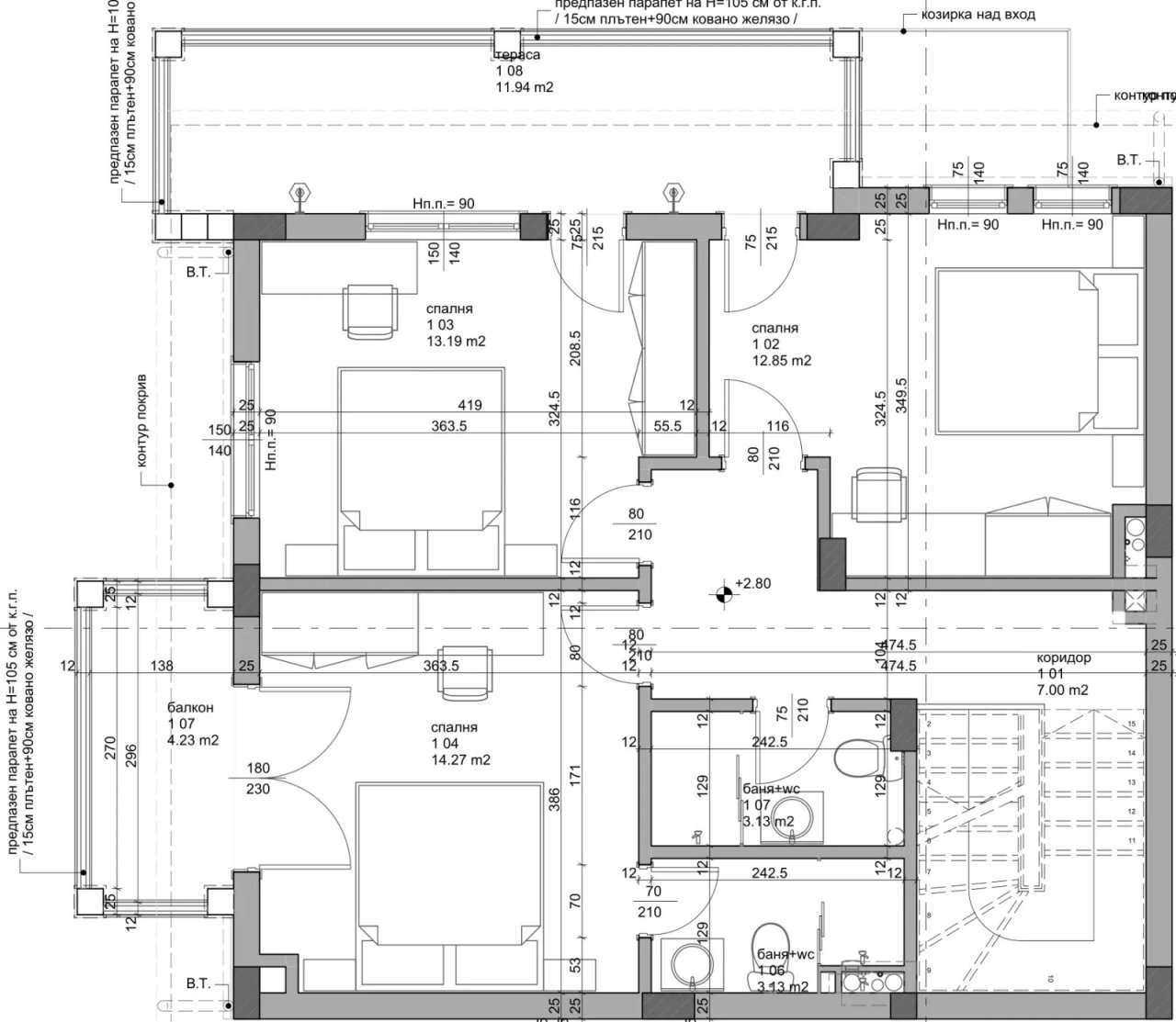
Етаж 2 - 84,26 кв.м
• Главна спалня с собствена баня
• Спалня 1
• Спалня 2
• Баня
• Коридор…
Къщата в момента се строи, във фаза преди Акт14. Това означава, че грубият строеж е почти завършен. Строителството, включително основите, стени и покрив, са приключени. В момента се издава Акт №14, който удостоверява завършването на тази фаза. Това е важен момент, тъй като след това следват довършителни работи като монтажи, дограма и облицовки. Процесът на строителство се осъществява съгласно одобрения проект и техническите стандарти, за да се гарантира стабилността и качеството на бъдещата къща. Къщата е подходяща за клиенти, които искат интериора да бъде направен или променен в по-късен етап.
Предлагат се и други къщи за продажба – свържете се с нас и ще ви предоставим цялата необходима информация!
Тип къща: Еднофамилна къща
Брой етажи: 2
брой спални: 3
брой бани: 3
Балкон: 1
Тераса: 1
Маза: не
Подходящо за ваканционна къща: да
Околност: Спокоен район, жилищен комплекс
Обзаведено: не
Гледка: Далечна гледка
Качество на обзавеждането: лукс
Година на строеж: 2025
Строителна фаза: Къща в строеж
Състояние: Първо ползване
При сключване на договор за покупко-продажба не се начислява комисиона от покупната цена от страна на купувача.
Предоставената от нас информация се основава на данни, предоставени от продавача. Не можем да гарантираме точността и пълнотата на тези данни. Възможни са грешки и предварителна продажба.
Обръщаме внимание на нашите Общи условия. С използването на нашите услуги вие потвърждавате, че сте запознати с тях и се съгласявате.
Може също да ви хареса
Луксозен дом в Поморие Комплекс къщи в Поморие

Nils Ott Group Ltd.
Г-н Nils Ott
Hotel Bisser, Office Nr 58240 Sunny Beach
Телефон: +359 88 6498335













































































































