Kosharitsa:
Нов еднофамилна къща, ново строителство в село Ко shadeostra, България
Обект №: HK






Цена:
175.000 €
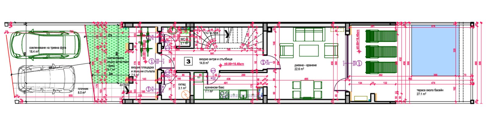
Жилищна площ ок.:
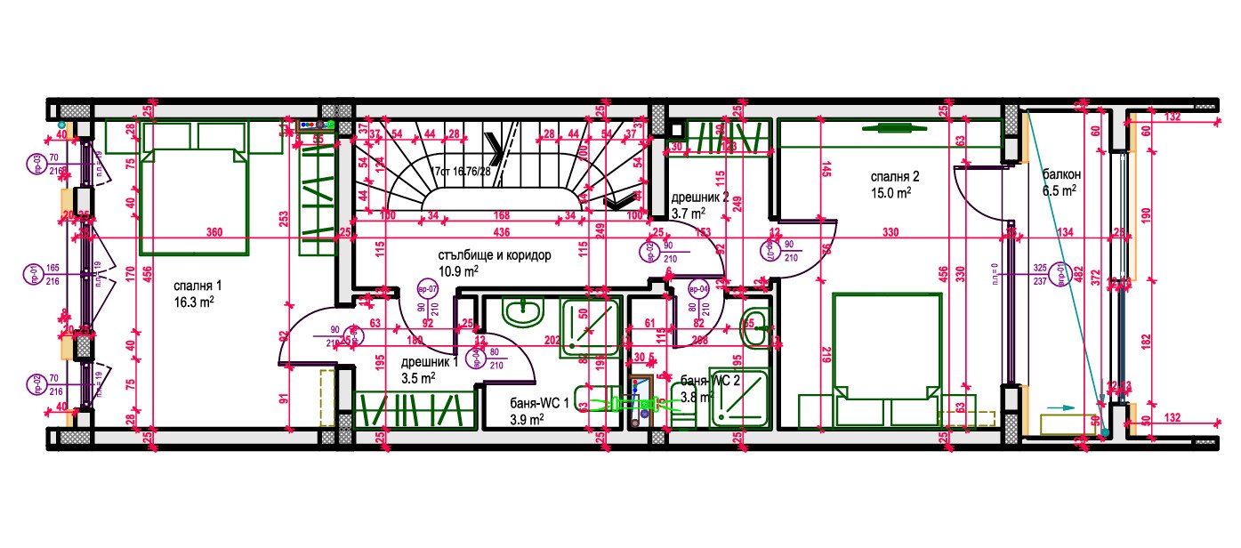
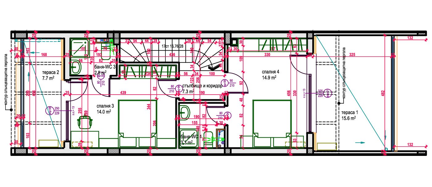
126 м²
Парцел ок.:
300 м²
Брой стаи:
3
Ние предлагаме различни двуетажни еднофамилни къщи в груб строеж в популярния жилищен квартал Косарица, България. Тези къщи са идеални за всички, които търсят модерно жилище в спокойна, природна среда.
Архитектура и строителство
Двуетажни еднофамилни къщи с обща площ от 126 до 156 кв.м
Модерен стил на строителство с ясни линии и съвременен дизайн
Груб строеж, по желание и с готова ключова доставка
Панорамен изглед към морето и околните планини
Местоположение и околност
Само на 3 км от морето, идеално за спокойна живеене далеч от туристическия шум
Екологично чист район за живеене, подходящ за постоянно или ваканционен дом
Комбинация от планински и морски климат
Околността предлага отлични условия за селски туризъм, планинско катерене, водни спортове, лов, риболов и разглеждане на забележителности
Разстояние до летище Сарафово/Бургас: 35 км
Удобства и предимства
Без такси за поддръжка
Гъвкави опции за завършване: груб строеж или ключова доставка…
Отлично съотношение цена-качество
Цена на квадратен метър: 1400 € на м²
Заключение
Еднофамилните къщи в Косарица съчетават спокойна, природна среда, модерна архитектура и гъвкави възможности за завършване. Те са идеални за купувачи, които търсят комфорт, панорамна гледка и атрактивна инвестиционна възможност.
Тип къща: Къща в провинцията
С комисионна: не
Полезна площ ок.: 126 м²
брой спални: 2
брой бани: 2
Балкон: 1
Тераса: 1
Маза: не
Околност: Автобус, Възможност за пазаруване, Спокоен район, Близо до плажа
Година на строеж: 2026
Строителна фаза: Къща в строеж
При сключване на договор за покупко-продажба не се начислява комисиона от покупната цена от страна на купувача.
Предоставената от нас информация се основава на данни, предоставени от продавача. Не можем да гарантираме точността и пълнотата на тези данни. Възможни са грешки и предварителна продажба.
Обръщаме внимание на нашите Общи условия. С използването на нашите услуги вие потвърждавате, че сте запознати с тях и се съгласявате.
Може също да ви хареса
Хотел-ресторант в центъра на Обзор, България


























































