Sunny Beach:
Новопостроени апартаменти в Aphrodite Gold, Слънчев бряг
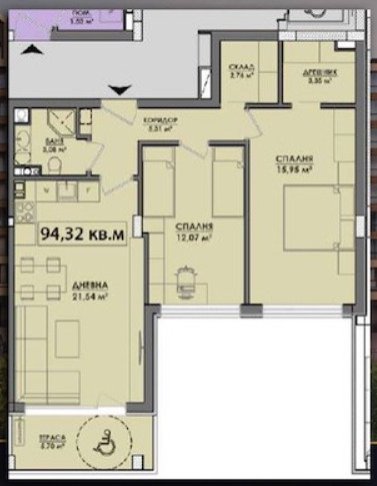
Обект №: AGBM










Цена:
89.771 €
Жилищна площ ок.:
56,46 м²
Брой стаи:
2
Архитектурата следва изтънчената линия на вече изградени комплексите Aphrodite Gardens и Aphrodite Park, като ги продължава безпроблемно. Топлите пясъчни тонове на фасадите, вдъхновени от древни африкански градове, се съчетават с хладното синьо на живописния басейн и създават чувство за оазис.
За комфортната почивка на жителите комплексът разполага с плувен басейн за възрастни с детска зона. За да отговорим на всички изисквания на нашите клиенти, предлагаме различни жилищни опции – малки и компактни студиа, както и просторни ед-room и двустаен апартаменти.
Комплексът разполага с 67 апартамента, включително 54 едностайни, 6 студиа и 7 двустайни апартамента.
Цена за 1 м2 от 1550 лв.
Тип апартамент: Апартамент
Етаж: 2
Брой етажи: 6
С комисионна: не
Баня: Душ
брой спални: 1
брой бани: 1
Балкон: 1
Басейн: да
Климатик: да
Асансьор: да
Подходящо за възрастни хора: да
Подходящо за ваканционно жилище: да
Околност: Аптека, Автобус, Възможност за пазаруване, Ваканционен комплекс, Спокоен район, Басейн, Близо до плажа
Година на строеж: 2025
Състояние: Първо ползване
Може също да ви хареса
Студио в новия комплекс Ла Мер Силвър Резидънс 2













































