Karşıyaka:
Красивые апартаменты с видом на море и горы
№ объекта: NC19074
















Цена:
319.000 €
Жилая площадь:
135 кв.м
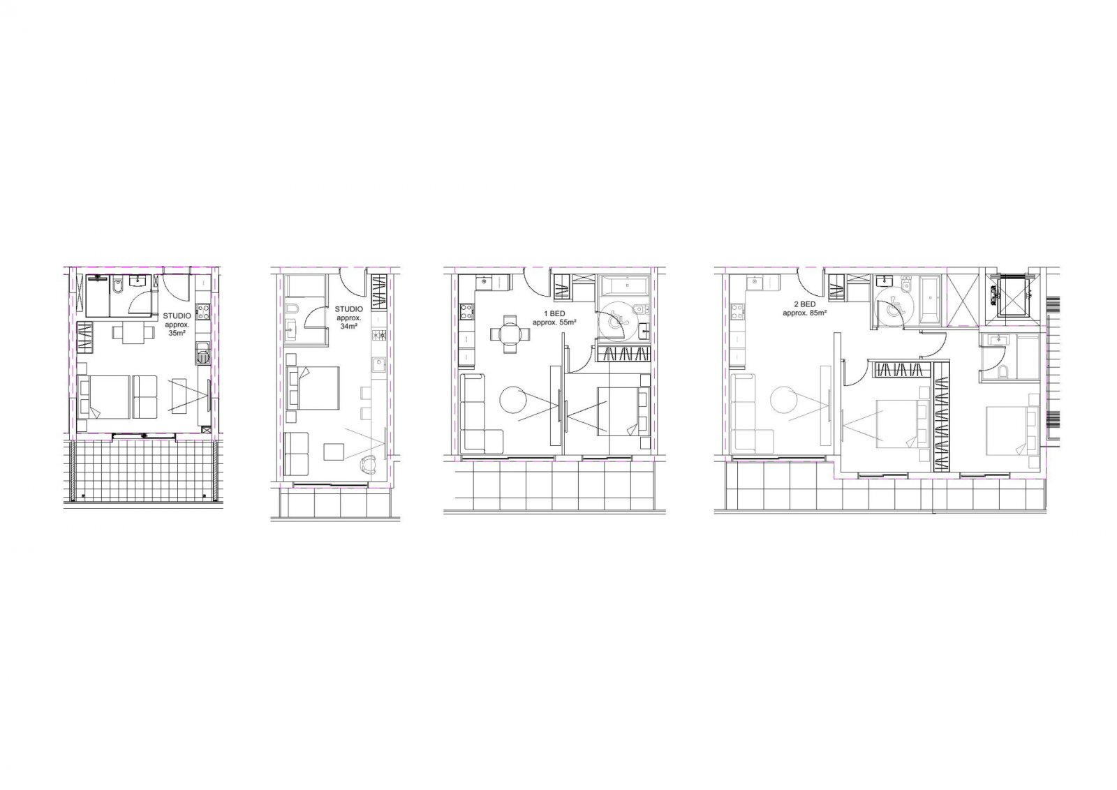
Жилой комплекс Aura Residence, расположенный на живописном склоне горы Каршияка в Кирении, гармонично сочетает в себе природную красоту и современный дизайн. Этот изысканный комплекс из 88 апартаментов с одной и двумя спальнями предлагает просторные апартаменты с садом и пентхаусы с захватывающим видом на Средиземное море, окруженные пышной зеленью гор Кирении.
Тип жилья: Квартира на этаже
Балкон: 1
Терраса: 1
Вам также может понравиться

Nils Ott Group Ltd.
Господин Nils Ott
Hotel Bisser, Office Nr 58240 Sunny Beach
Телефон: +359 88 6498335
Karşıyaka




















































