Vodice:
Современный таунхаус с бассейном, садом и видом на море в Водице.
№ объекта: IP22791






























Цена:
675.000 €
Жилая площадь:
168 кв.м
В новом жилом районе Водице началось строительство современного проекта из трех роскошных вилл с террасами, сочетающих привлекательную архитектуру, уединение и комфортную жизнь у моря. Расположение на небольшом холме открывает прекрасный вид на море и окрестности: пляж находится всего в 800 метрах, а центр города — в 1200 метрах. Такое сочетание тихой обстановки и доступности услуг создает идеальные условия для круглогодичного проживания и инвестиций с высоким потенциалом сдачи в аренду.…
Каждая вилла имеет собственный бассейн, благоустроенный и огороженный сад и частную парковку. Проект разработан с акцентом на качество исполнения и долгосрочную ценность. Будут использованы высококачественные материалы и современные технологии, включая 10-сантиметровый утепленный фасад, противопожарные и защитные входные двери, алюминиевые окна антрацитового цвета, крупноформатные раздвижные стены со стеклом Sun Gard с солнцезащитным покрытием, электрические рольставни, встроенные противомоскитные сетки, подогрев пола с тепловыми насосами, кондиционирование воздуха во всех комнатах, высококачественные напольные покрытия, современная сантехника, стеклянные перила и система видеонаблюдения. Ожидаемая дата завершения строительства — ноябрь 2026 года.
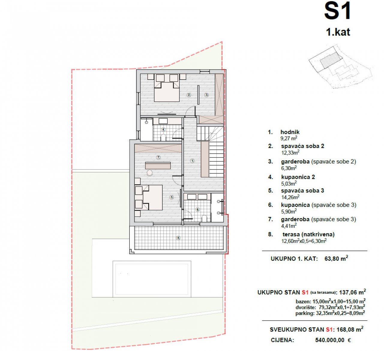
Вилла S1 имеет общую полезную площадь 168,08 м² и включает в себя жилую площадь 137,06 м², бассейн 15 м², внутренний двор 79,32 м² и парковочное место 32,35 м². Планировка выполнена на двух этажах. На первом этаже расположены прихожая, спальня, ванная комната и открытая гостиная с кухней и столовой с выходом на крытую террасу и к бассейну с подогревом. На верхнем этаже находится главная спальня с ванной комнатой, гардеробной и крытой террасой, а также еще одна спальня и ванная комната. Цена составляет 675 000 евро.
Вилла S2 имеет общую площадь 193,67 м² и три этажа, включая террасу на крыше с панорамным видом на море. На крыше можно установить джакузи и создать зону отдыха. Цена составляет 793 750 евро.
Вилла S3 предлагает общую площадь 204,04 м², а также террасу на крыше с видом на море. Больший сад и более просторная планировка обеспечивают еще более высокий уровень комфорта и уединения. Цена составляет 825 000 евро.
Кроме того, дома освобождены от 3% налога на передачу недвижимости, что означает дополнительную экономию средств.
Водице — одно из самых востребованных мест отдыха в Центральной Далмации. Здесь вас ждут ухоженные пляжи, современная пристань для яхт, рестораны, кафе и круглогодичная инфраструктура. Близость Шибеника и национальных парков повышает привлекательность этого района не только для отдыха, но и как стабильного инвестиционного объекта. Недвижимость в этом районе имеет долгосрочную ценность и представляет собой гарантию в сегменте элитного жилья у моря.
Все данные, представленные в этом объявлении, носят исключительно информационный характер. Прежде чем принимать какое-либо решение или действовать на основании этой информации, необходимо проверить все данные в нашем агентстве недвижимости.
Тип дома: Вилла
Балкон: 1
Терраса: 1
Бассейн: Да
Количество мест автостоянки: 1 x Парковка снаружи
Вам также может понравиться

Nils Ott Group Ltd.
Господин Nils Ott
Hotel Bisser, Office Nr 58240 Sunny Beach
Телефон: +359 88 6498335
Vodice






















































