Burgas:
Квартира 1+1 в комплексе Atlas 2, Бургас, Болгария
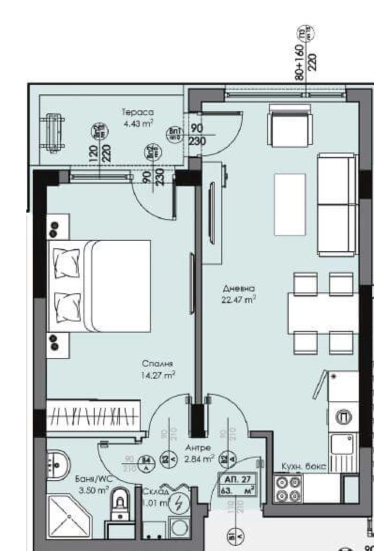
№ объекта: SL28030






























































Цена:
103.950 €
Жилая площадь:
63 кв.м
Количество комнат:
2
Атлас 2 — это новый жилой комплекс в современном районе Азимут города Бургас. Он расположен в развивающемся районе с развитой инфраструктурой и предоставляет идеальные условия для проживания и инвестиций.
📍 Местоположение:
Комплекс находится в районе Мадика/Азимут города Бургас, одном из быстро развивающихся новых кварталов с большим количеством зелени, хорошей связью со всеми удобствами и транспортными путями.
🏙️ Идеальное сочетание городского образа жизни и комфорта:
• В непосредственной близости к центру города Бургас, крупным торговым центрам и важным транспортным узлам;
• Всего примерно в 5 км от побережья и пляжей — идеально для проживания и летнего отдыха;
• Около 5 км до аэропорта Бургас — идеально для путешествий и сдачи в аренду.
Этаж: 4
Количество этажей: 6
Подлежит начислению комиссионных: Нет
Полезная площадь: 63 кв.м
Количество ванных комнат: 2
Балкон: 1
Сад: Да
Подвал: Нет
Сигнализация: Да
Лифт: Да
Приспособлен к нуждам пожилых людей: Да
Пригоден в качестве апартаментов для проведения отпуска: Да
Окрестности: Автобусная остановка, Торговый центр, Парк, Игровая площадка
Год постройки: 2027
При заключении договора купли-продажи с покупателя не взимается комиссия за посредничество/доказательство от покупной цены.
Предоставленная нами информация основана на данных продавца. Мы не можем гарантировать точность и полноту этих данных. Возможны ошибки и предварительная продажа.
Мы обращаем ваше внимание на наши Общие условия. Пользуясь нашими услугами, вы подтверждаете свое знакомство с ними и даете согласие.
Вам также может понравиться
Квартира в Sole Mare Aheloy
Интернет-кафе-клуб Panorama Dreams в Свети Влас






































