Pomorie:
Фантастические дома в комплексе Houses в Поморие
№ объекта: MK0016






























Цена:
215.000 €
Жилая площадь:
154,18 кв.м
Земельный участок ок.:
178,22 кв.м
Количество комнат:
3
Новый жилой комплекс с 16 роскошными одноэтажными домами появляется в Поморие.
Каждый дом двухэтажный и имеет следующую планировку:
• Первый этаж — просторная гостиная с кухней, ванная комната с туалетом, хозяйственное помещение для центрального отопления, прачечная, гараж с теплым подключением
• Второй этаж — 3 спальни, 2 ванные комнаты с туалетом, одна из которых — главная спальня с собственной ванной и туалетом, 2 террасы.
Общая застроенная площадь домов составляет от 160 до 230 кв.м. Каждый дом имеет собственный двор площадью от 150 до 250 кв.м.
Здесь находится дом №8 — ваше новое место жительства!
Прекрасное имущество имеет следующую планировку:
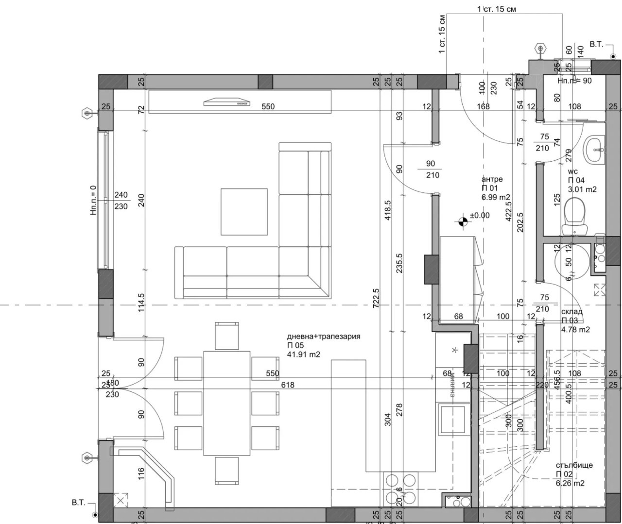
Этаж 1 — 69,92 м²
• Гостиная с кухней и столовой
• Техническое помещение
• Ванная комната
• Коридор
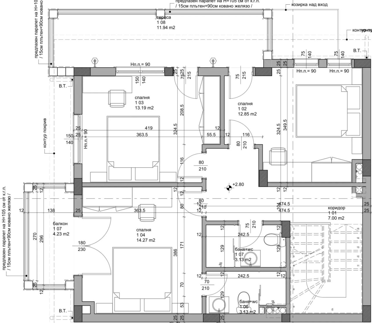
Этаж 2 — 84,26 м²
• Главная спальня с собственной ванной комнатой
• Спальня 1
• Спальня 2
• Ванная комната
• Коридор…
Дом сейчас строится, находится на стадии перед четвертым актом. Это означает, что каркас почти завершен. Строительство, включая фундамент, стены и крышу, выполнено. Сейчас выдается акт №14, подтверждающий завершение этой стадии. Это важный момент, поскольку после него начинаются отделочные работы: установка инженерных систем, оконных рам и облицовки. Строительный процесс ведется в соответствии с утвержденным проектом и техническими стандартами для обеспечения прочности и высокого качества будущего дома. Дом подходит для клиентов, которые хотят позже самостоятельно оформить интерьер.
Также доступны другие дома для продажи — обращайтесь к нам, и мы предоставим всю необходимую информацию!
Тип дома: Одноквартирный дом
Количество этажей: 2
Количество спальных комнат: 3
Количество ванных комнат: 3
Балкон: 1
Терраса: 1
Подвал: Нет
Пригоден в качестве дома для проведения отпуска: Да
Окрестности: Зона отдыха, Жилое здание
Обстановка: Нет
Вид из окна: Панорама
Качество отделки: Люкс
Год постройки: 2025
Фаза строительства: В строительстве
Состояние: Первое заселение
Вам также может понравиться

Nils Ott Group Ltd.
Господин Nils Ott
Hotel Bisser, Office Nr 58240 Sunny Beach
Телефон: +359 88 6498335











































































