Burgas:
Appartamenti moderni nel quartiere elegante di Azimut a Burgas a prezzi di costruttore
Ref.n°.: MK0027


































Prezzo:
1.350 €
Superficie ca.:
1 mq.
Vani :
1
Benvenuti nel progetto residenziale Atlas III, il più recente passo di sviluppo nel quartiere Azimut a Burgas. Questo innovativo progetto edilizio, dal design architettonico ricercato, è stato concepito con particolare attenzione allo stile di vita moderno e offre un ambiente completo per vivere e lavorare – in armonia con il ritmo dinamico e la visione urbana del quartiere.
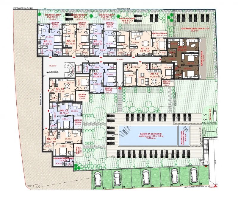
Atlas III è un complesso residenziale multi-piano caratterizzato da funzionalità studiata e alto comfort abitativo. Gli edifici dispongono di due livelli sotterranei con un totale di 146 garage e 42 posti auto, distribuiti tra il seminterrato -2 e -1.
La struttura non offre solo appartamenti di alta qualità, ma anche una vasta gamma di servizi per le esigenze quotidiane:
- Piano terra (piano terra):
- Centro medico
- Studio dentistico
- Farmacia
- Laboratorio
- Ottica
- Otto cliniche ambulatoriali per consultazioni singole o di gruppo
- Bistro per la vita quotidiana
- Quattro unità abitative dal design moderno…
Questa combinazione di spazi residenziali e servizi crea un ambiente confortevole e contemporaneo con accesso diretto a servizi sanitari e di uso quotidiano.
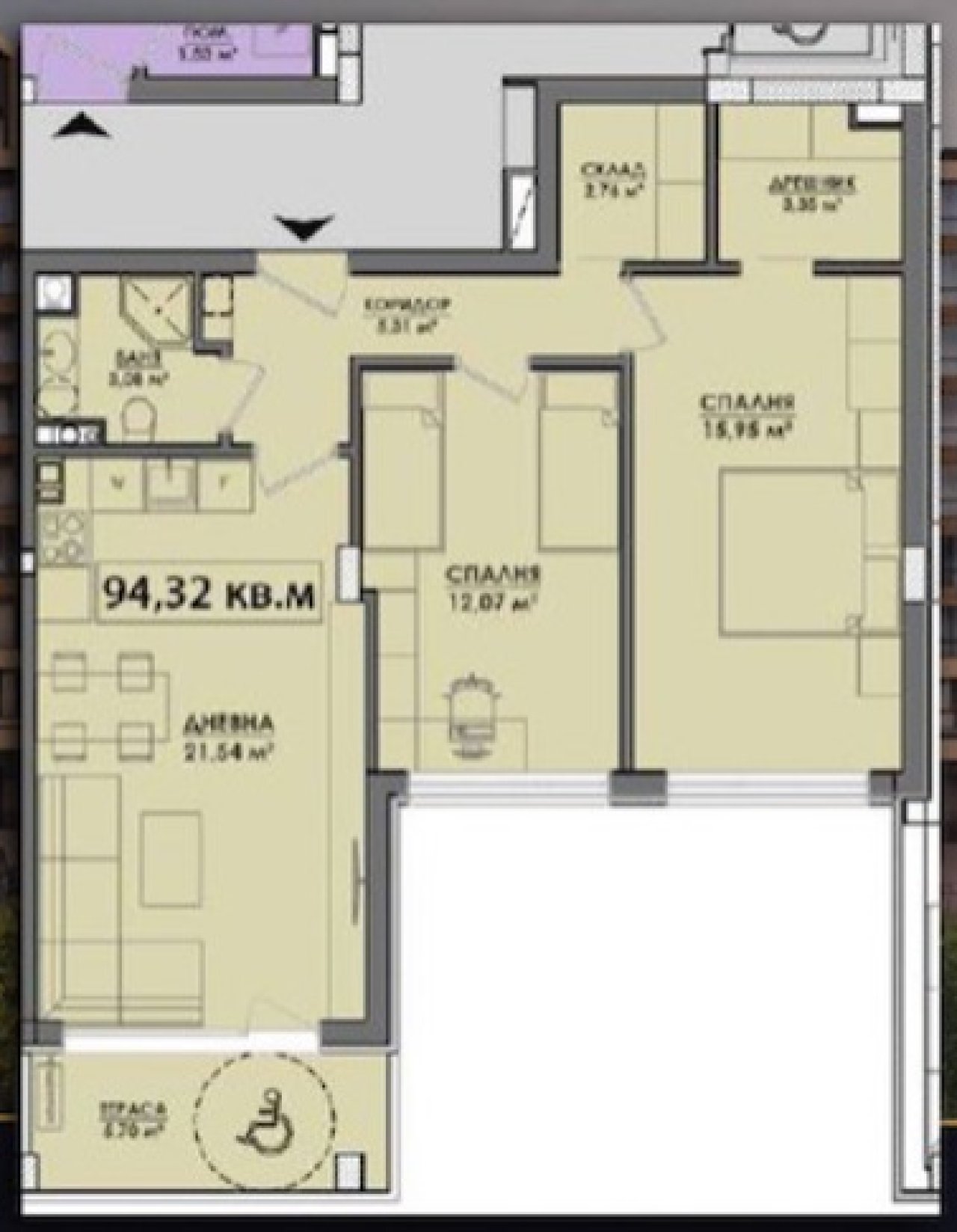
Dimensioni degli appartamenti & numero di stanze
- Monolocali: circa 60 m²
- Appartamenti con 2 camere: circa 75 m²
- Appartamenti con 3 camere: circa 120 m²
- Appartamenti con 4 camere: circa 160 m²
I prezzi variano in base alle dimensioni, alla posizione e all’arredamento, a partire da 1350,00 € al m².
Per consulenze personalizzate e preventivi sui prezzi, si prega di richiedere informazioni.
Vantaggi all’acquisto
- Vendita diretta dall’impresa costruttrice
- Servizio completo dalla scelta all’arredamento
- Elevata stabilità del valore e potenziale d’investimento
- Ambiente favorevole alle famiglie
- Architettura innovativa e concetto abitativo sostenibile
- Servizi medici e quotidiani integrati direttamente nell’edificio
Tipologia: Appartamento
Piano: 2
Piani: 10
Con obbligo di provvigione: No
Numero delle camere da letto: 1
Area condizionata: Si
Adatta come casa per le vacanze: Si
Dintorni: Farmacia, Possibilità di acquisto, Centro fitness, Asilo nido, Ospedale, Parco giochi, Campo da tennis, Complesso residenziale, Zona residenziale
Qualità dell´arredamento: Elevato
Stato: Nuovo
Potrebbe anche piacerti
Appartamento presso il Florence Beach Resort, Pomorie
Appartamenti nel complesso City V2, Sonnenstrand

Nils Ott Group Ltd.
Signor Nils Ott
Hotel Bisser, Office Nr 58240 Sunny Beach
Telefono: +359 88 6498335




























